电话:梁经理:18703736676
电话:0373-8793988:0373-8419288
邮箱:18703736676@163.com
地址:长垣市长恼工业区ag九游会j9集团路
分公司地址:洛阳市西工区洛阳工业园区衡山路100号


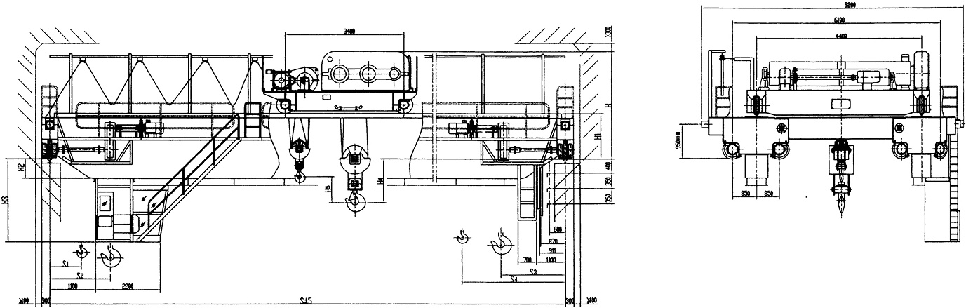
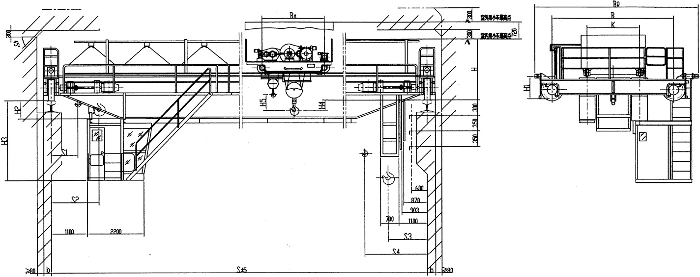
QDY吊钩桥式铸造起重机主要用于吊运熔融金属的冶金、铸造等场所,整机工作级别为A7,在主梁底部加设隔热层装置。起重机装配与试验符合国家质量监督检验检疫总局所发的质检办特[2007]375号文件。其它吊运熔融的非金属物料和吊运炽热固态金属的场所也可参照选用。(注:以下图中H0为大车缓冲器增加的高度。H0≤250)
环境条件:
1、起重机的电源为三相交流,额定频率为50HZ,额定电压为380V;
2、工作环境温度为-10~+60℃;
3、在+40℃的温度下相对湿度不超过50%;
4、如超过上述要求,根据用户需要按订货合同条款执行。
订货须知:
用户在定货或签订合同时,必须将本机的基本参数(额定起重量、起升高度、跨度等)描述清楚,以便提供满足工况要求和工作条件的产品。



电话:梁经理:18703736676
电话:0373-8793988:0373-8419288
邮箱:18703736676@163.com
地址:长垣市长恼工业区ag九游会j9集团路
分公司地址:洛阳市西工区洛阳工业园区衡山路100号
