全国统一咨询热线 18703736676
双梁起重机
首页 > 产品中心 > 双梁起重机
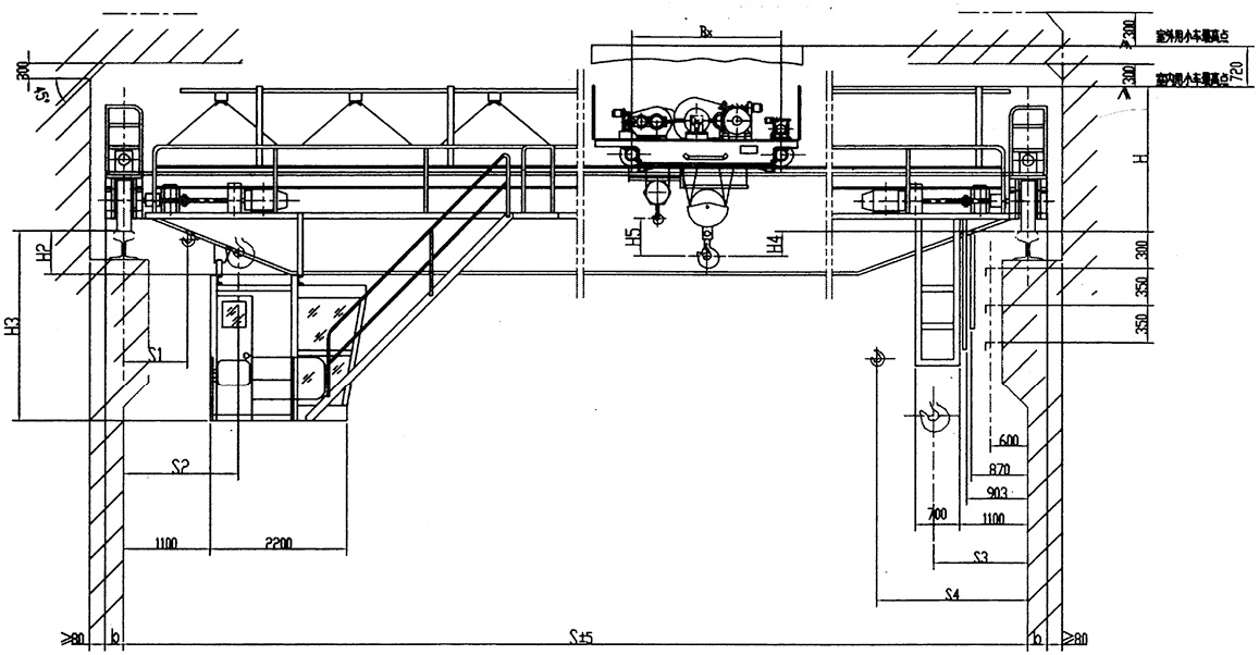
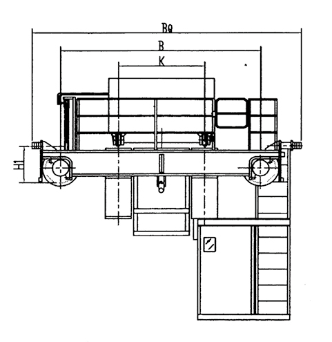
QD型5~50/10吨吊钩桥式起重机
  QD型吊钩桥式起重机,主要由桥架、大车运行机构、小车、电器设备等组成。根据使用频繁程度不同,分为...
18703736676

20160525062428840

  QD型吊钩桥式起重机,主要由桥架、大车运行机构、小车、电器设备等组成。根据使用频繁程度不同,分为A5、A6二种工作级别。

  该起重机动作操纵全部在司机室内完成。


我们的优势/ Our advantages
品质保障
品质保障
现有员工3100余人,占地68万余平方米,拥有资产10.33亿元
**设备
**设备
拥有各类加工设备1300台(套),能独立完全部生产工艺流程
支持定制
支持定制
可根据客户实际情况进行设计,提供更适合您的产品解决方案
服务无忧
服务无忧
7*24小时专职客服快速响应服务,快速解决使用难题
立即订购/ Order now
服务热线:
18703736676
联系我们Contact us

电话:梁经理:18703736676

电话:0373-8793988:0373-8419288

邮箱:18703736676@163.com

地址:长垣市长恼工业区ag九游会j9集团路

分公司地址:洛阳市西工区洛阳工业园区衡山路100号

版权所有 河南省ag九游会j9集团起重机有限公司 备案号:豫ICP备17001028号-8