电话:梁经理:18703736676
电话:0373-8793988:0373-8419288
邮箱:18703736676@163.com
地址:长垣市长恼工业区ag九游会j9集团路
分公司地址:洛阳市西工区洛阳工业园区衡山路100号
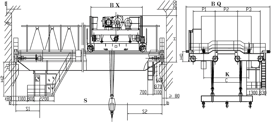
吊钩桥式起重机是目前应用较为广泛的起重机械,其主要由箱形桥架、起重小车、大车运行机构和电气控制系统组成。取物装置是吊钩。
主梁上面铺设有轨道,供起重小车沿主梁方向作横向移动。主梁与箱型端梁焊接而成,端梁中间布置有接头,螺栓或销轴连接,供桥架分拆运输。
操作方式设有地面手柄、无线遥控和司机室三种操作形式。驾驶室有开式、闭式两种,内有可调式座椅,底板铺设绝缘垫,窗玻璃采用钢化玻璃,可根据用户要求配置冷暖空调、讯响器、对讲机等物品。
起重机可配挂马达抓斗、电磁吸盘等取物装置,满足吊运多种类型物料的需求。
起重机工作级别A3~A7,常用起重量为3~250t。适宜在环境温度-20℃~40℃,相对湿度不大于85%的工厂、仓库及货场等处作装卸吊运工作,禁止在易燃、易爆以及充满腐蚀性气体的环境中工作。


电话:梁经理:18703736676
电话:0373-8793988:0373-8419288
邮箱:18703736676@163.com
地址:长垣市长恼工业区ag九游会j9集团路
分公司地址:洛阳市西工区洛阳工业园区衡山路100号
