电话:梁经理:18703736676
电话:0373-8793988:0373-8419288
邮箱:18703736676@163.com
地址:长垣市长恼工业区ag九游会j9集团路
分公司地址:洛阳市西工区洛阳工业园区衡山路100号


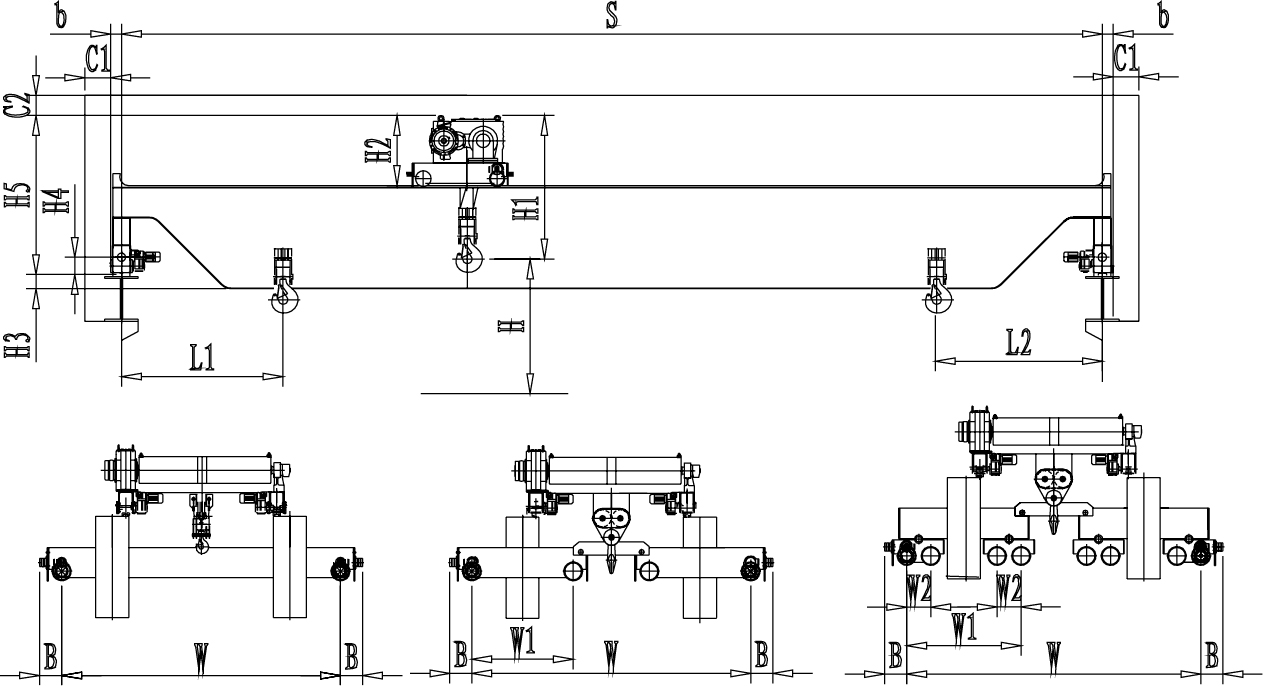
H-起升高度 Hoisting height
V1-起升速度 Hoisting speed
V2-小车运行速度 Traveling speed of trolley
V3-大车运行速度 Traveling speed of crane
L1-起重机左极限 Left limit of crane
L2-起重机右极限 Right limit of crane
C1-起重机两端极限 Minimum limit of both ends
C2-起重机顶部极限 Minimum limit of top of crane
S-起重机跨度 Crane span
H1-起重机小车钩心到顶部的距离 Distance between core of hook and its top
H2-起重机小车的高度 Height of trolley
H3-起重机底部到大车轨道面的距离 Distance between the bottom of crane and crane rail plane
H4-起重机缓冲器到大车轨道面的距离 Distance between buffer of crane and crane rail plane
H5-起重机顶部到大车轨道面的距离 Distance between the top of crane and crane rail plane
W-起重机外两个车轮之间的距离 Distance between two outmost wheels of crane
W1-起重机一角外两个车轮之间的距离 Distance between two outmost wheels of one corner of crane
W2-起重机台车两个车轮之间的距离 Distance between two wheels of trolley
B-起重机外车轮距离缓冲器端部之间的距离 Distance from the outmost wheel to ends of buffer
b-起重机端部距离大车轨道之间的距离 Distance from ends to rail of crane
G-起重机整车的重量 Overall weight of crane
K-起重机大轮压 Maximum wheel pressure of crane
P-起重机总的功率 Total power of crane
选型说明
1、本产品系列表仅列出了常用的基本的规格起重机,工作级别为A5(FEM 2m)时的标准跨度,没有副钩的室内用起重机。客户根据需要可以提出相应的要求。
2、本系列也可以增加副起重机构,也可以增加轻载时速度加倍的设置,一般主副的设置为4:1,也可以根据客户的要求设定。囚设置副钩则起重机的总重及轮压会有所增加。
3、表中的尺寸,重量,轮压供客户订货时参考,如果客户的需要条件发生变化,如工作级别,速度,起升高度有变化时,相应的参数,尺寸,重量,轮压等都会发生变化,实际的参数,质量,轮压以合同的要求为准。
4、表中列出的起升速度,大小车速度为标准值,可以根据客户的需求做相应的调整。
5、技术参数及尺寸会因为技术的改进或者升级有所变化,如有疑问的话可以和公司技术部联系。
















电话:梁经理:18703736676
电话:0373-8793988:0373-8419288
邮箱:18703736676@163.com
地址:长垣市长恼工业区ag九游会j9集团路
分公司地址:洛阳市西工区洛阳工业园区衡山路100号
